Home
Projects
Residential
Hospitality
Commercial
Artwork
Before/After
Artist Consultant
Community
About
Contact
Home
Projects
Residential
Hospitality
Commercial
Artwork
Before/After
Artist Consultant
Community
About
Contact
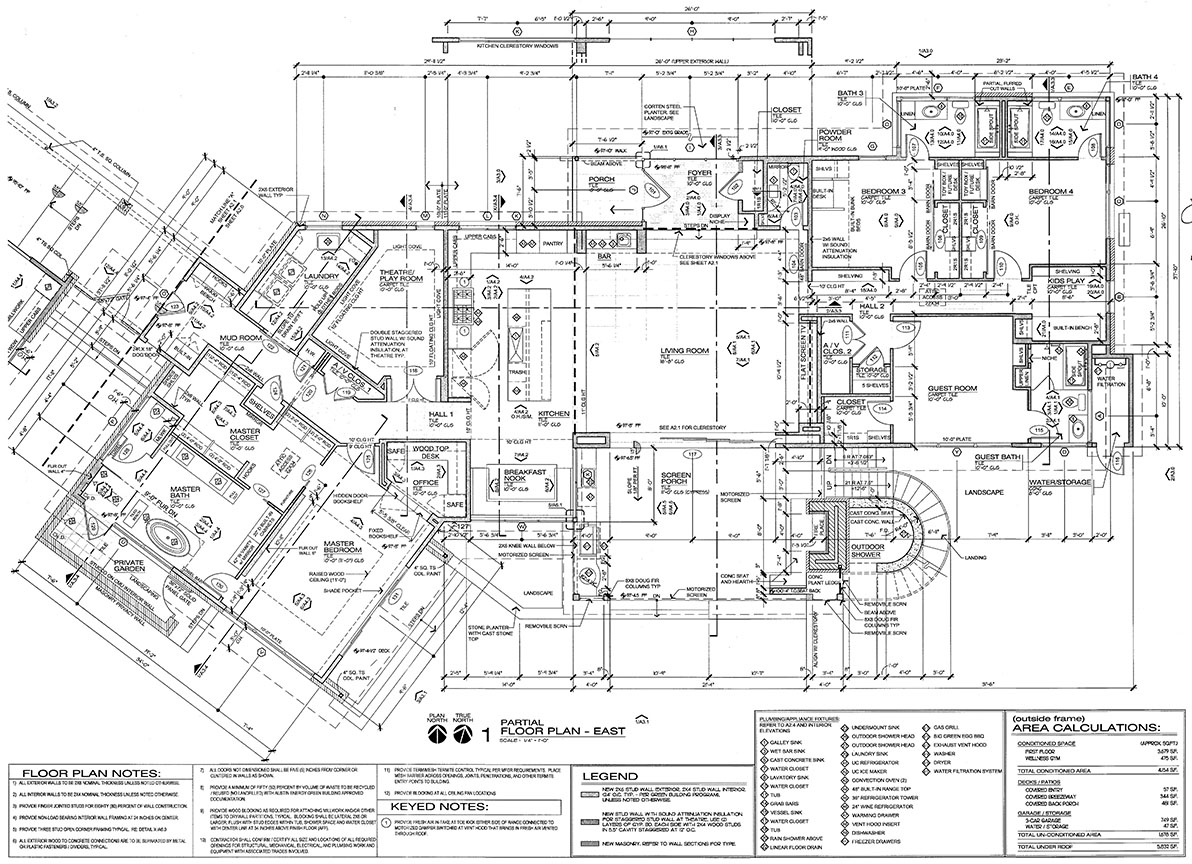
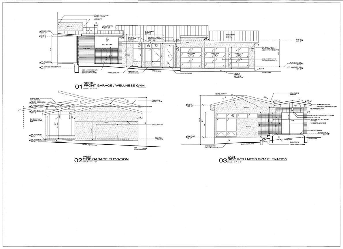
Redbud Trail
Architecture & Interior Design
JM Bennett Architecture
Karina Adams Architecture LLC
(c) 2026 Karina Adams Architecture LLC