Karina Adams Architecture works with several local artists by helping them solve technical details for their large sculptural and community work. We often provide shop drawings, technical manufacturing files, 3D models, and graphic/portfolio proposal files for community and governmental RFP's.

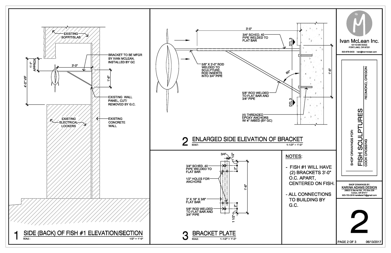
Ivan McLean is a professional large sculpture artist who works on private and public projects throughout the US. He has an average of 10 large commissions per year along with many smaller projects. Karina Adams Architecture collaborates with Ivan by providing professional presentations to help him compete in the public RFP process, and also creates technical drawings that are often needed for commercial projects. Karina also helps by providing laser, or other manufacturing files. Karina met Ivan through mutual artist friends Rory and Eric Leonard. Ivan McLean's Website.

Eric and Rory Leonard are a father and son metal sculpture artist team who also work on their own individual projects. Karina worked with them extensively while in-house at McCormick & Schmick's Seafood Restaurants. Karina Adams Architecture has also provided Rory with laser, CNC, and 3D Rhino files. Springbox Website

Horatio Law is a interdisciplinary community-focused artist with a background in biology. His practice includes "reinterpretations of cultural icons, trans-cultural adoptions, and the current state of cuture of consumption" - see Center for Public Interest Design at PSU for more information. Karina Adams Architecture collaborates with Horatio by providing technical assistance through CAD, Illustrator, 3D Rhino, manufacturing files, and graphics as needed for competitions. We met through Karina's work with the Center for Public Interest Design during the Gateway Pavilion Project. Horatio Law's Facebook