Home
Projects
Residential
Hospitality
Commercial
Artwork
Before/After
Artist Consultant
Community
About
Contact
Home
Projects
Residential
Hospitality
Commercial
Artwork
Before/After
Artist Consultant
Community
About
Contact
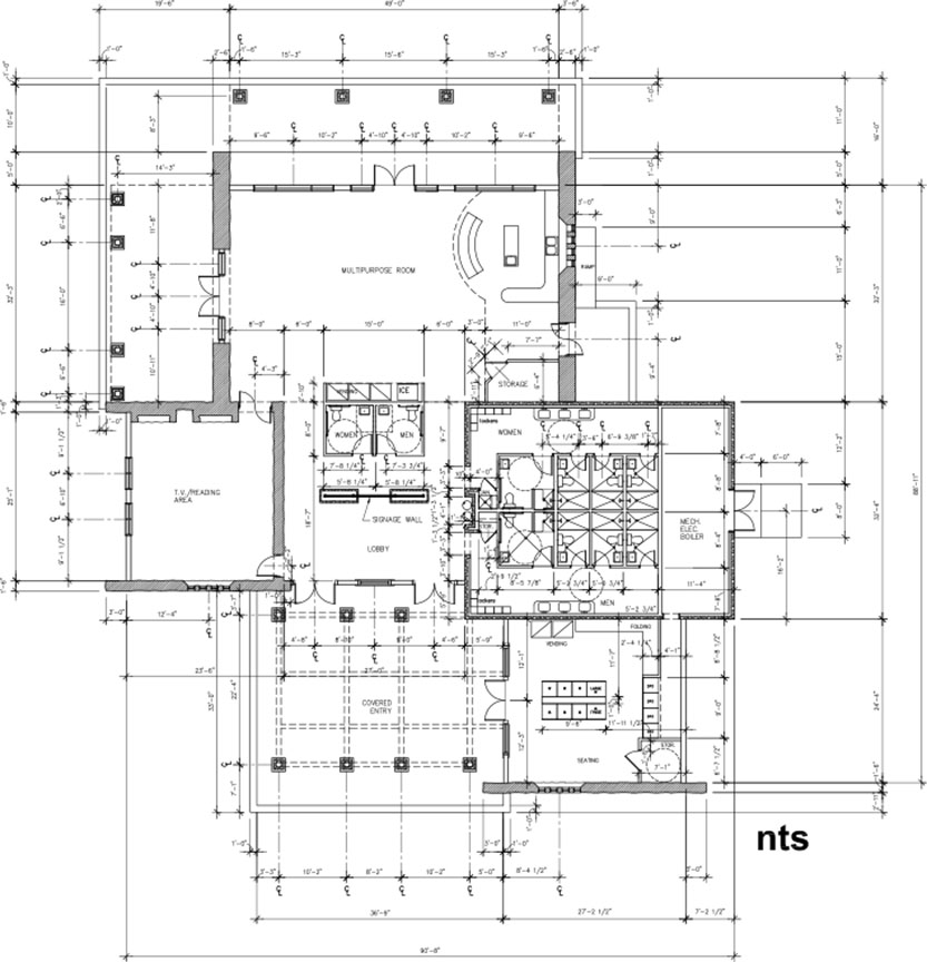
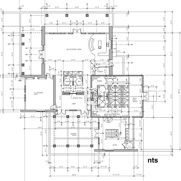
Lajitas Community & Manager's Home
Architecture & Interior Design
JM Bennett Architecture
Karina Adams as in-house Project Manager/Designer
(c) 2026 Karina Adams Architecture LLC