Home
Projects
Residential
Hospitality
Commercial
Artwork
Before/After
Artist Consultant
Community
About
Contact
Home
Projects
Residential
Hospitality
Commercial
Artwork
Before/After
Artist Consultant
Community
About
Contact
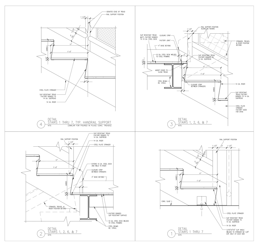
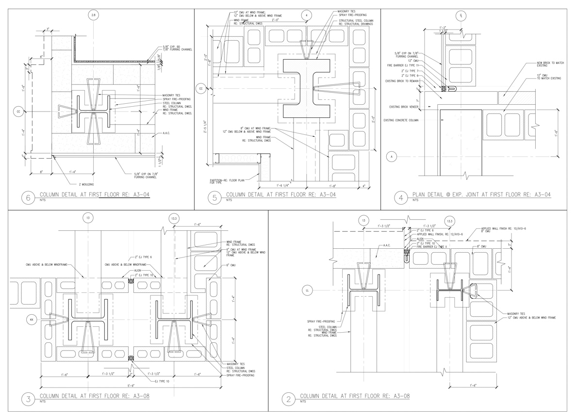
Austin Convention Center
Architecture
Cotera, Kolar, & Negrete Architects and Page Southerland Page
Karina Adams as Intern
(c) 2026 Karina Adams Architecture LLC